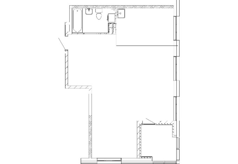
3-ΠΊΠΎΠΌΠ½Π°ΡΠ½Π°Ρ, 72.75 ΠΌΒ²
ΠΠ°Π½Π½ΡΠ΅ ΠΎΠ± ΠΎΠ±ΡΠ΅ΠΊΡΠ΅
ΠΡΠΎΠ΅ΠΊΡ
ΠΠΎΡΠ΅ΠΉΠ΄ΠΎΠ½ΠΈΡ
ΠΠ΄ΡΠ΅Ρ
Π³. ΠΠ»Π°Π΄ΠΈΠ²ΠΎΡΡΠΎΠΊ, ΡΠ». ΠΠ°ΡΠ΅ΡΠ½Π°Ρ, Π΄. 16
ΠΠΎΠΌΠ½Π°Ρ
3 ΠΊΠΎΠΌΠ½Π°ΡΡ
ΠΠ»ΠΎΡΠ°Π΄Ρ
72.75 ΠΌΒ²
ΠΡΡΠΎΡΠ° ΠΏΠΎΡΠΎΠ»ΠΊΠΎΠ²
2.75 ΠΌΠ΅ΡΡΠ°

Π Π°ΡΡΡΠΈΡΠ°ΡΡ
ΠΈΠΏΠΎΡΠ΅ΠΊΡ
ΠΠ°ΠΏΠΎΠ»Π½ΠΈΡΠ΅ ΠΏΠΎΠ»Ρ ΠΈ ΠΌΡ ΠΏΠ΅ΡΠ΅Π·Π²ΠΎΠ½ΠΈΠΌ Π²Π°ΠΌ Ρ ΡΠ°ΡΡΠ΅ΡΠΎΠΌ Π΅ΠΆΠ΅ΠΌΠ΅ΡΡΡΠ½ΠΎΠ³ΠΎ ΠΏΠ»Π°ΡΠ΅ΠΆΠ° ΠΏΠΎΠ΄ Π²ΡΠ±ΡΠ°Π½Π½ΡΠ΅ Π²Π°ΠΌΠΈ ΡΡΠ»ΠΎΠ²ΠΈΡ.